

![]()
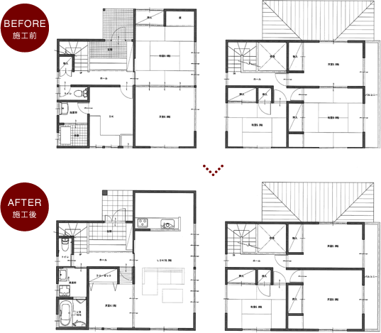
リフォーム前の2年間ほど空き家だった築35年の住居は、和室の畳がフカフカになるぐらい老朽化していました。キッチンが住居の中央に位置しており、風通しが悪くジメジメと暗い間取りを、リフォームで一新!!シンプルモダンな大空間LDKのお宅に大変身しました。
リフォーム事例詳細
中古住宅を買って、リフォームして住むという新しいスタイルが20代後半~30代のご夫婦の間で大流行しています。現状の家賃と同じぐらいの支払いのまま、マイホームを手に入れる方法として注目されています。テレビの影響もあってか、中古住宅に対する価値観が以前とは変わってきているのと同時に、あえて中古物件を自分スタイルにリフォームして、住んでみたいというニーズが増えてきています。


<リフォーム箇所>
すべて(スケルトンリフォーム)
<施工データ>
- 建物構造・種別:
- 軽量鉄骨2階建て
- 築年数:
- 35年
- 工事面積:
- 110.96平方メートル(33.56坪)
- 工事期間:
- 約1.5ヶ月
- リフォーム費用:
- 約900万円



POINT 1:カウンターキッチン
住居の中央に位置し、ジメジメと暗かったキッチンは、明るいLDK空間の一つとして位置を変更することで、家族との会話を楽しみながら料理ができるスタイルへと変身しました。週末にはご夫婦で料理を一緒に作ったりと、コミュニケーションが増える設計になっています。


POINT 2:オールドアメリカン
ご主人様のこだわりは、トイレ。トイレのドアを開けると、そこには他の空間と異なるデザインが目に飛び込んできます。アメリカの新聞をイメージした壁紙を一面にはり、オールドアメリカンのテイストを醸し出しています。


POINT 3:照 明
せっかくならちょっとお洒落にしておきたいのが照明です。リビングや吹き抜けの空間などには、間接照明やちょっとお洒落な照明を使うことで、素敵な空間の演出に一役かっています。


POINT 4:ユニットバス
築35年のお風呂は、在来工法で作られたタイル張りのお風呂。冬は外気の影響をもろに受け、浴室と居室との温度差が激しくなっていました。ユニットバスにすることで、ヒートショックの心配も改善され、快適なバスライフを送ることができます。














